Trankärrsgatan 11
Kärra 78:12-13Mångsidig lokal med lager, butik och kontor på utmärkt skyltläge mot E6 i Hisings Kärra
5 715 kvm
Här finns möjlighet att hyra en mångsidig byggnad om totalt 5 715 kvm i Hisings Kärra, perfekt för verksamheter som söker en kombination av lager, butik och kontor. Byggnaden erbjuder en flexibel lösning med moderna faciliteter och ett optimalt skyltläge mot E6 för maximal exponering.
Lokalen omfattar ca 4 200 kvm lager på markplan med 7 meters takhöjd till balk, utrustad med 3 lasthus, 2 lastkajer och 2 markportar för smidig lastning och lossning. Lagret har hög standard med LED-belysning, oljeavskiljare, golvbärighet om 2,5 ton/kvm och strömkapacitet om 160 Ampere.
I direkt anslutning till lagret ligger butiksytan om ca 950 kvm med ljusa, öppna ytor och stora skyltfönster mot Transkärrsgatan. Här finns även en mindre verkstadsdel samt personalutrymmen.
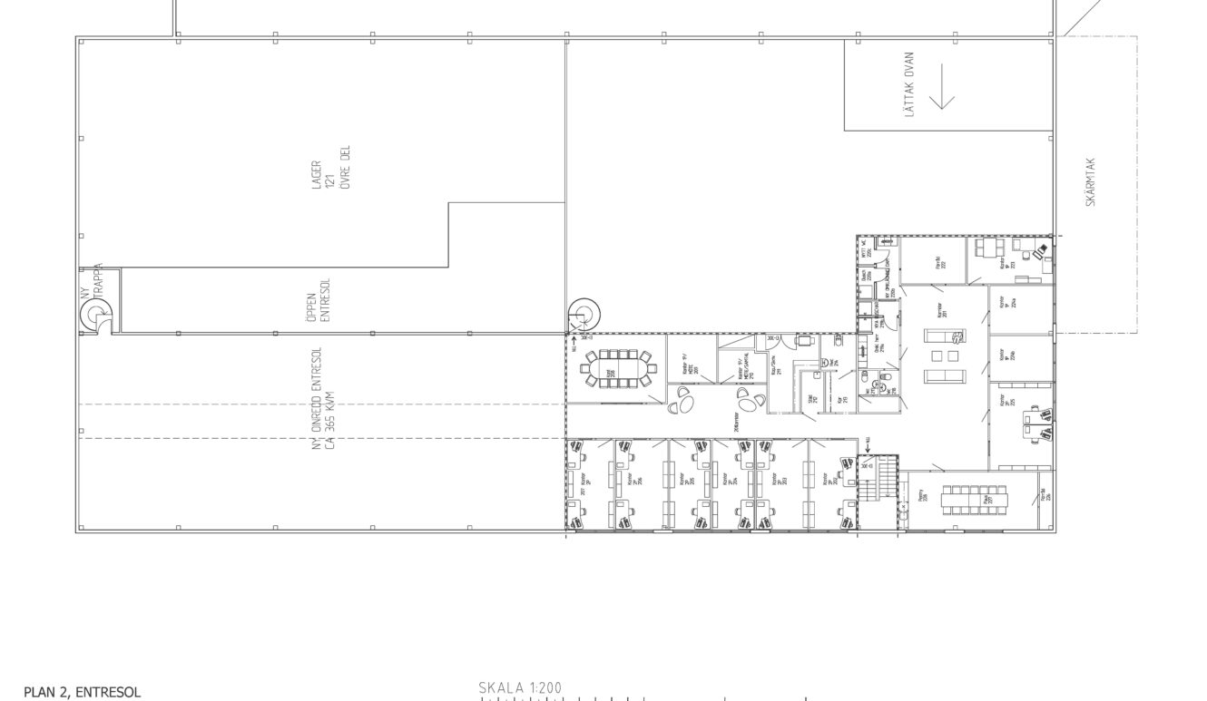
Kontorsdelen på två plan om totalt 565 kvm erbjuder en mix av kontorsrum, mötesrum och gemensamma utrymmen som pentry, matsal och omklädningsrum.
Byggnaden ligger på ett inhägnat område med rymliga asfalterade rangerytor och uppställningsytor, samt erbjuder goda parkeringsmöjligheter för både kunder och personal.
15 km norr om centrala Göteborg
Takhöjd 7 meter
3 lasthus, 2 markportar och lastkaj
Golvbärighet 2.5 ton/kvm
Direkt anslutning till E6
Läge/närmaste ort
Hisings Backa
Hisings Kärra är ett populärt industriområde präglat av handel, logistik och tillverkning som ligger strategiskt placerat 15 km norr om centrala Göteborg, i direkt anslutning till E6. Området är beläget i närheten av Bäckebol Köpcenter där det finns ett brett serviceutbud av butiker och restauranger att tillgå. Det finns goda kollektivtrafikförbindelser med buss till centrala Göteborg.
- E 6 (81)0.2 km
- Göteborg Landvetter Airport14 km
- Wallhamns hamn19 km
- Surte3 km
- Trankärrsgatan0.1 km
- ICA Supermarket Kärra0.7 km
- Kärra Värdshus0.1 km
- Bäckebol Home Center1 km
Avstånden är beräknade fågelvägen från postkodens mittpunkt.
Översikt
| Lediga enheter | Kvm |
| Hel fastighet | Kvm:5 715 |
Varför Mileway?
Dedikerad Asset Manager
Personlig service
Flexibla hyresvillkor
Ledande i Sverige & Europa inom last mile-logistikfastigheter
Väl underhållna och säkra lokaler
Fokus på hållbar utveckling
Kontakta oss
Fyll i formuläret för att få mer information, boka en visning eller om du har en generell förfrågan.
Eller ring gärna Markus Christensson på +46 (0) 70 838 97 89




















